河南建筑材料研究设计院有限责任公司


  • 至尊国际

    加入收藏 | 设为至尊国际

    此页面上的内容需要较新版本的 Adobe Flash Player。

    获取 Adobe Flash Player

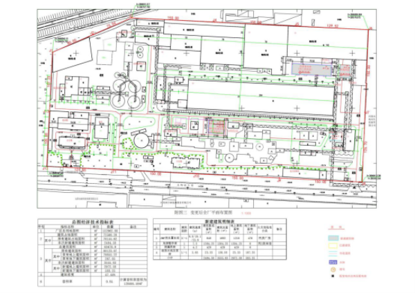
    沁阳市金隅水泥有限公司利用水泥窑协同处置30000t/a危险废物项目变更环境影响分析报告
    来源:本站/作者:管理员/ 日期:2021-05-28

    沁阳市金隅水泥有限公司_.png

    项目时间:202003

    建设地点:焦作市沁北工业集聚区,沁阳市金隅水泥有限公司现有厂区内

    项目规模:处理规模100t/d,30000t/a,以固态危废和半固态危废处置为主,其中固态危险废物2000t/a,半固态危险废物20000t/a,液态危险废物8000t/a